We were delighted to attend the sod-turning event to mark the commencement of refurbishment work at the former Rutland Street School.
This initiative marks a significant milestone for the NEIC community, revitalising a site of considerable historical significance.
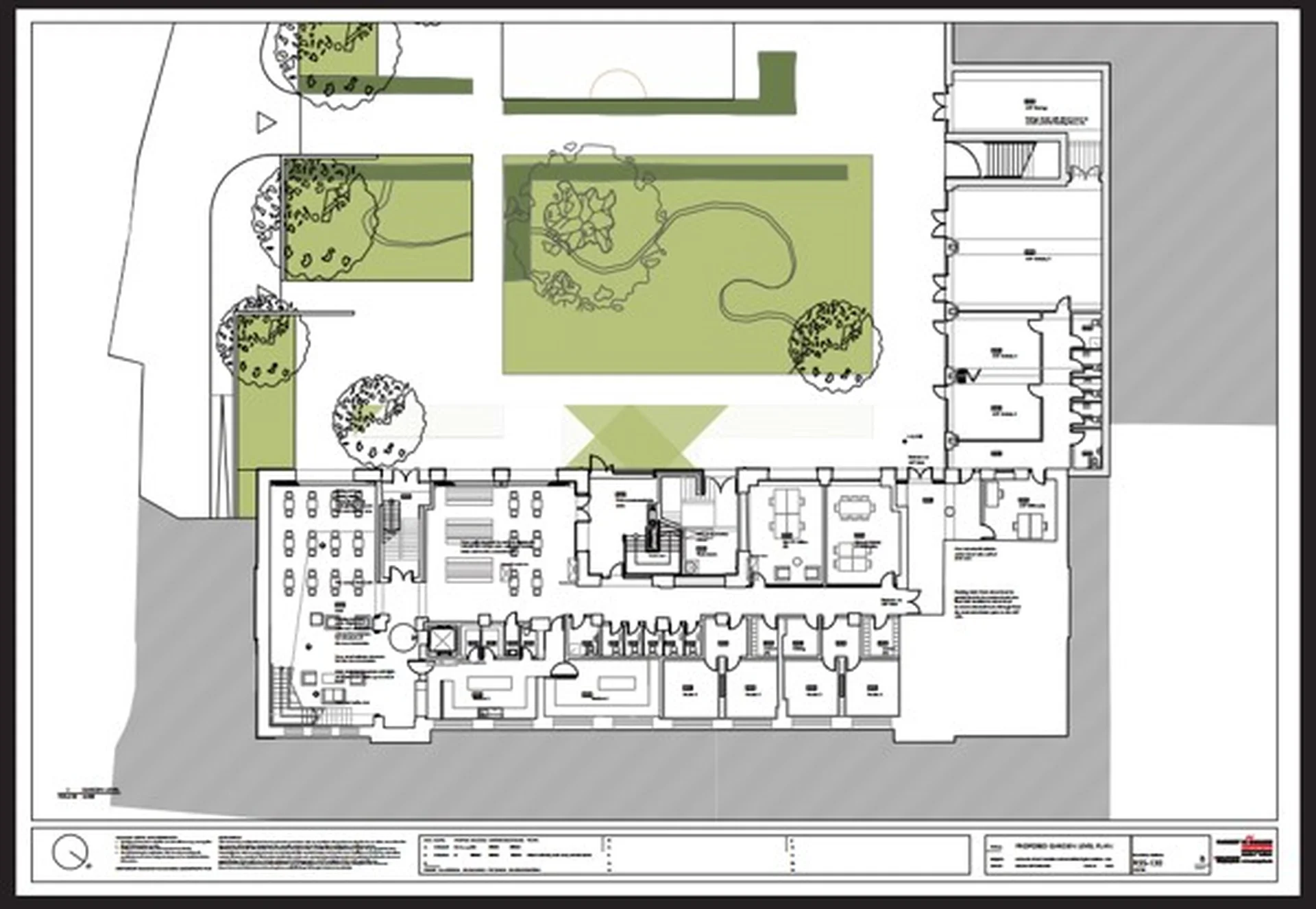
The project envisions the transformation of the building into a multifunctional community facility, complete with gardens, educational spaces, and a café to serve the local community.
Looking forward to seeing this landmark building in the North East Inner City become a central point for generations to come.
:format(webp)?_w=1920)
:format(webp)?_w=1920)
